明石市和坂2丁目 新築 和坂小学校区/野々池中学校区
みなさんこんにちは。
本日は明石市和坂2丁目の新築戸建ての物件をご紹介します。
こちらの物件も弊社なら仲介手数料無料でご案内いたします!他社で購入されるよりも、114万8,400円お得にご購入いただけます!
※仲介手数料の他、ローン代行手数料なども一切必要ありません!垂水区や須磨区以外の物件でもお気軽にご相談ください!
地震に強い家です!
本日ご紹介する物件はこちらのお家です。



明石市和坂2丁目に完成した新築一戸建て物件です。
土地面積は109.80㎡(33.21坪)、建物面積は102.06㎡(30.87坪)です。

駐車場は普通車1台分です。
それでは建物を見ていきましょう。


玄関の右側にはシューズボックスが設置されています。
リビングダイニングとキッチンスペースへ




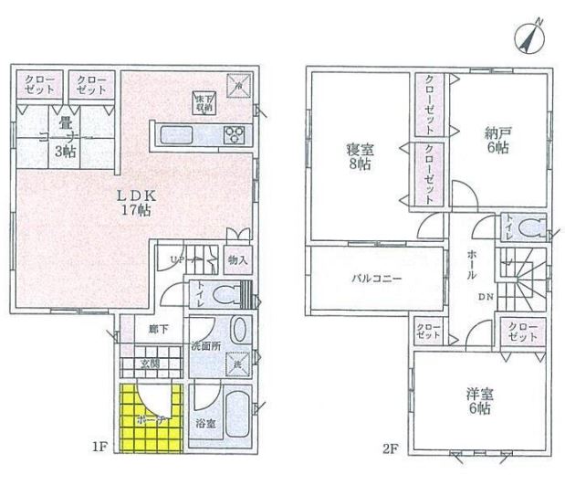
リビングダイニングとキッチンスペースは合わせて17帖の広さです。
キッチンは対面式のシステムキッチンが採用されています。



キッチンのコンロは、IH仕様です。
キッチン後ろ側、食器棚や冷蔵庫を設置するスペースもしっかりと確保されています。
お米や、お酒の一升瓶などのストックに重宝する床下収納庫も完備されています。
リビング隣接の畳コーナーです。(約3帖)

1階のトイレです。

トイレは温水洗浄便座付きのものが採用されています。
清潔感のある内装になっています。
洗面所と浴室スペースです。





浴室乾燥機ももちろん設置されています。
階段を上がって2階へ


2階には、6帖、6帖、8帖の洋室とトイレ、バルコニーがあります。






2階のトイレです。

バルコニーです。


最寄駅のJR西明石駅へは徒歩で約17分。
こちらの物件から最寄駅であるJR西明石駅へは徒歩で17分程です。
駅周辺には、大規模な商業施設や、区役所、金融機関、各種医院も揃っていて
買い物生活便利です。
学校区は和坂小学校(徒歩約8分)と野々池中学校(徒歩約45分)です。
明石市和坂2丁目の物件のいいところ、うーんなところ
いいところ
・西明石駅まで徒歩圏です!
・閑静な住宅街です!
・地震に強い家です!
うーんなところ
・駐車場1台分です。
・中学校遠いです。
JR西明石駅周辺で物件をお探しの方はぜひご見学ください!
※見学希望の方は弊社にお電話ください!現地オープンハウスは他社の場合がございます。
和坂2丁目のこちらの新築戸建て物件です。
こちらの物件も弊社では仲介手数料無料でご案内させていただきます!他社(割引無し)で購入するよりも、114万8,400円お得!!
になります。
月々85,144円で購入できます!
※三井住友銀行:ボーナス払いなし、金利0.5%、35年元利均等方式で計算。
現地の見学などは土日祝日、時間帯などお客様のご都合に合わせて対応させていただきます。遠慮なくお申し付けください!
ご質問や、もう少し写真が欲しい!というご要望もお受けしております!ご相談ください。
お問い合わせは、
神戸市垂水区・須磨区・西区で家を買うなら!
仲介手数料最大無料の(株)ハートフルコーポレーションまで!
TEL:078-785-5820
MAIL:info@heartfull.co.jp
FAX:078-785-5821
兵庫県知事免許(5)第401022号
[公益社団法人]近畿圏不動産流通機構会員
[公益社団法人]近畿地区不動産公正取引協会加盟店
この記事を書いた人:

営業担当:島 直樹
「どんな些細なことでもお気軽にお問い合わせください!LINEでのご相談・質問などもお待ちしています。」
HP:
神戸で有名建築家と注文住宅を建てる - 新築注文デザイナーズ住宅はハートフルコーポレーションが安い!
合わせておすすめの物件: