神戸市長田区御船通3丁目 新築 池田小学校区/西代中学校区
みなさんこんにちは。
本日は神戸市長田区御船通3丁目の新築戸建ての物件をご紹介します。
こちらの物件も弊社なら仲介手数料無料でご案内いたします!他社で購入されるよりも、118万1,400円お得にご購入いただけます!
※仲介手数料の他、ローン代行手数料なども一切必要ありません!垂水区や須磨区以外の物件でもお気軽にご相談ください!
本日ご紹介する物件はこちらのお家です。



神戸市長田区御船通3丁目に完成した新築一戸建ての物件です。
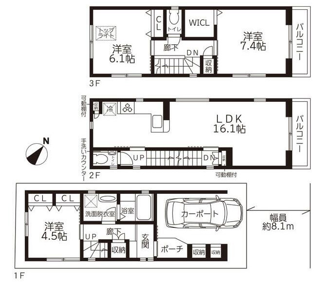
土地面積は47.13㎡(14.25坪)、建物面積は92.64㎡(28.02坪)です。

駐車場は普通車1台分です。

それでは建物を見ていきましょう。


玄関正面にはシューズボックスが設置されています。
玄関からのホールの様子です。

1階には4.5帖の洋室が設置されています。


洗面所と浴室です。





浴室乾燥機も標準装備されています。
階段を上って2階へ上がります。


16.1帖のLDKはこちらです。







リビングには床暖房が設置されています。
キッチンはL字型のシステムキッチンが採用されています。



食洗機も標準装備されています。
2階のバルコニーです。


2階のトイレです。

階段を上がって3階へ


3階には6.1帖、7.4帖の各洋室と、トイレ、バルコニーがあります。




3階のトイレです。

温水洗浄便座付きのものが採用されています。
3階のバルコニーです。


3階からの眺望です。


最寄駅の地下鉄長田駅へは徒歩で約7分。
こちらの物件から最寄駅である地下鉄長田駅へは徒歩で約7分ほどです。
学校区は池田小学校と西代中学校です。
御船通3丁目の物件のいいところ、うーんなところ
いいところ
・明るい東向きです!
・床暖房、食洗機など設備良いです!
・地震に強い家です!
・駅まで徒歩7分です!
うーんなところ
・価格がもう少し・・・
御船通3丁目周辺で物件をお探しの方はぜひご見学ください!
※見学希望の方は弊社にお電話ください!現地オープンハウスは他社の場合がございます。
こちらの物件も弊社では仲介手数料無料でご案内させていただきます!他社(割引無し)で購入するよりも、118万1,400円お得!!
になります。
月々87,739円で購入できます!
※三井住友銀行:ボーナス払いなし、金利0.5%、35年元利均等方式で計算。
現地の見学などは土日祝日、時間帯などお客様のご都合に合わせて対応させていただきます。遠慮なくお申し付けください!
ご質問や、もう少し写真が欲しい!というご要望もお受けしております!ご相談ください。
お問い合わせは、
神戸市垂水区・須磨区・西区で家を買うなら!
仲介手数料最大無料の(株)ハートフルコーポレーションまで!
TEL:078-785-5820
MAIL:info@heartfull.co.jp
FAX:078-785-5821
兵庫県知事免許(6)第401022号
[公益社団法人]近畿圏不動産流通機構会員
[公益社団法人]近畿地区不動産公正取引協会加盟店
この記事を書いた人:

営業担当:島 直樹
「どんな些細なことでもお気軽にお問い合わせください!LINEでのご相談・質問などもお待ちしています。」
HP:
神戸で有名建築家と注文住宅を建てる - 新築注文デザイナーズ住宅はハートフルコーポレーションが安い!
合わせておすすめの物件: