神戸市垂水区東垂水1丁目 新築 東垂水小学校区/垂水東中学校区
みなさんこんにちは。
本日は神戸市垂水区東垂水1丁目の新築戸建ての物件をご紹介します。
こちらの物件も弊社なら仲介手数料無料でご案内いたします!他社で購入されるよりも、105万2,700円お得にご購入いただけます!
※仲介手数料の他、ローン代行手数料なども一切必要ありません!垂水区や須磨区以外の物件でもお気軽にご相談ください!
地震に強い家!
本日ご紹介する物件はこちらのお家です。



神戸市垂水区東垂水1丁目に完成した新築一戸建ての物件です。
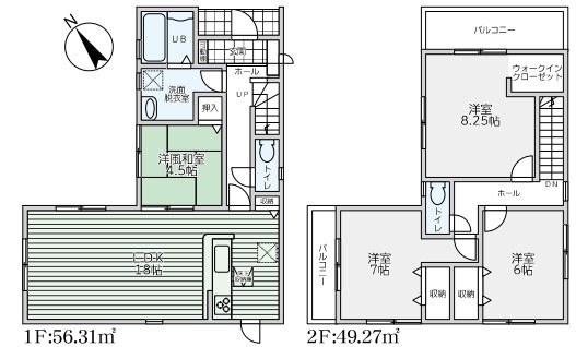
土地面積は103.88㎡(31.42坪)、建物面積は105.58㎡(31.93坪)です。


駐車場は1台分です。
それでは建物を見ていきましょう。



玄関右側には土間収納が
左側には大型のシューズボックスが設置されています。
玄関からのホールの様子です。

1階にあるトイレです。

明るいトイレスペースになっています。
リビングダイニングとキッチンスペースへ




リビングダイニングとキッチンスペースは合わせて約18帖の広さです。
広々とした空間が確保されています。
キッチンは対面式のシステムキッチンが採用されています。




1階にある約4.5帖の和室です。


洗面所と浴室です。





浴室乾燥機も標準装備されています。
階段を上がって2階へ


2階には8.25帖、6帖、7帖、の各洋室と、トイレ、バルコニー2面があります。






2階のトイレです。2階のトイレも温水洗浄便座付きになっています。

バルコニーです。




最寄駅の山電滝の茶屋駅へは徒歩で約11分。
こちらの物件から最寄駅である山電滝の茶屋駅へは徒歩で約11分ほどです。
学校区は東垂水小学校(徒歩約5分)と垂水東中学校(徒歩約11分)です。
東垂水1丁目の物件のいいところ、うーんなところ
いいところ
・山電滝の茶屋駅まで徒歩11分です!
・学校近いです!
・地震に強い家です!
うーんなところ
・駐車場1台分です。
東垂水1丁目周辺で物件をお探しの方はぜひご見学ください!
※見学希望の方は弊社にお電話ください!現地オープンハウスは他社の場合がございます。
こちらの新築戸建て物件
こちらの物件も弊社では仲介手数料無料でご案内させていただきます!他社(割引無し)で購入するよりも、105万2,700円お得!!
になります。
月々77,616円で購入できます!
※三井住友銀行:ボーナス払いなし、金利0.5%、35年元利均等方式で計算。
現地の見学などは土日祝日、時間帯などお客様のご都合に合わせて対応させていただきます。遠慮なくお申し付けください!
ご質問や、もう少し写真が欲しい!というご要望もお受けしております!ご相談ください。
お問い合わせは、
神戸市垂水区・須磨区・西区で家を買うなら!
仲介手数料最大無料の(株)ハートフルコーポレーションまで!
TEL:078-785-5820
MAIL:info@heartfull.co.jp
FAX:078-785-5821
兵庫県知事免許(5)第401022号
[公益社団法人]近畿圏不動産流通機構会員
[公益社団法人]近畿地区不動産公正取引協会加盟店
この記事を書いた人:

営業担当:島 直樹
「どんな些細なことでもお気軽にお問い合わせください!LINEでのご相談・質問などもお待ちしています。」
HP:
神戸で有名建築家と注文住宅を建てる - 新築注文デザイナーズ住宅はハートフルコーポレーションが安い!
合わせておすすめの物件: