神戸市西区狩場台2丁目9 狩場台小学校区/櫨谷中学校区
みなさんこんにちは。
本日は神戸市西区狩場台2丁目の新築一戸建ての物件をご紹介します。
こちらの物件も弊社なら仲介手数料無料でご案内します。他社で購入されるよりも147万8,400円お得にご購入いただけます!
※ローン代行手数料なども一切必要ありません。
値段交渉も比較的しやすい時期ですので、是非この時期にお問い合わせください!
限定1区画です!
本日ご紹介する物件はこちらのお家です。



神戸市西区狩場台2丁目のお家です。
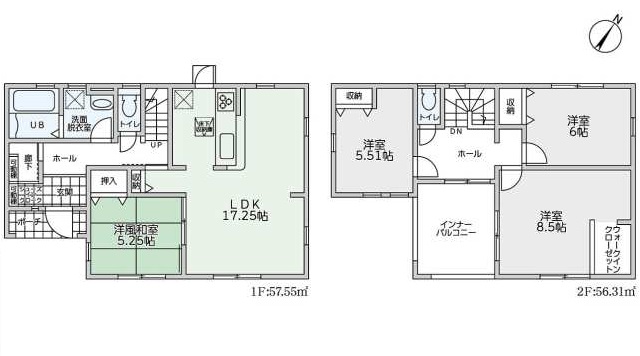
土地面積は227.76㎡(68.89坪)、建物面積は113.86㎡(34.44坪)で間取りは4LDKです。

駐車スペースは3台分となっています。
それでは建物を見ていきましょう!

明るい素敵な玄関です。

すぐ右側には大型のシューズインクロークが設置されています。


1階のトイレです。温水洗浄便座が装備されています。

洗面所と浴室です。





浴室乾燥暖房機も標準装備です。
リビングダイニングとキッチンスペースへ




LDKは約17.25帖の広さです。
キッチンは、対面式のシステムキッチンが採用されています。




キッチンスペースもゆったりしています。
リビング横の5.25帖の和室です。


リビング南側のお庭です。

階段を上がって2階へ


2階には洋室5.51帖、洋室6帖、WIC付きの洋室8.5帖と、トイレ、インナーバルコニーがあります。






WICの内部です。

2階のホールです。


2階のトイレです。

2階のトイレも温水洗浄便座が標準装備されています。
バルコニーです。


眺望です。


地下鉄西神中央駅まで徒歩では約22分の立地。
こちらの物件から最寄駅である西神中央駅までは、徒歩で22分程度です。
学校区は狩場台小学校と櫨谷中学校でそれぞれ徒歩約8分と徒歩約8分です。
狩場台2丁目の物件のいいところ、うーんなところ
いいところ
・閑静な住宅街です!
・明るい南向きです!
・地震に強い住宅です!
・駐車場3台分です!
・敷地約69坪です!
うーんなところ
・少し駅まで遠いです。
西区狩場台2丁目のこちらの新築戸建て物件、
です。
こちらの物件も弊社では仲介手数料無料でご案内させていただきます!他社(割引無し)で購入するよりも、147万8,400円お得!!
になります。
月々111,102円で購入できます!
※頭金・ボーナス払いなし、金利0.5%、35年元利均等方式で計算。
現地の見学などは土日祝日、時間帯などお客様のご都合に合わせて対応させていただきます。遠慮なくお申し付けください!
ご質問や、もう少し写真が欲しい!というご要望もお受けしております!ご相談ください。
お問い合わせは、
神戸市垂水区・須磨区・西区で家を買うなら!
仲介手数料最大無料の(株)ハートフルコーポレーションまで!
TEL:078-785-5820
MAIL:info@heartfull.co.jp
FAX:078-785-5821
兵庫県知事免許(5)第401022号
[公益社団法人]近畿圏不動産流通機構会員
[公益社団法人]近畿地区不動産公正取引協会加盟店
この記事を書いた人:

営業担当:島 直樹
「どんな些細なことでもお気軽にお問い合わせください!LINEでのご相談・質問などもお待ちしています。」
HP:
神戸で有名建築家と注文住宅を建てる - 新築注文デザイナーズ住宅はハートフルコーポレーションが安い!
合わせてオススメのお家: